- Woonoppervlakte
- Circa 118 m²
- Perceeloppervlakte
- Circa 494 m²
- Bouwjaar
- Gebouwd in 2002
- Aantal kamers
- 4 kamers (3 slaapkamers)
Gelegen aan de Spiegelplas , met vrijheid & ruimte – deze VRIJSTAANDE VILLA met Energielabel A en ruime garage - jouw eigen stukje paradijs!
Stap binnen in deze charmante, zeer goed onderhouden villa (bouwjaar 2003), gelegen op een royale kavel van 494m². Met een woonoppervlak van circa 117m², een inhoud van 625m³ en vier ruime kamers, waarvan drie slaapkamers, biedt deze goed geïsoleerde woning alle comfort van nu in een serene, waterrijke omgeving.
Prachtige locatie & buitenruimte
Adembenemend uitzicht over het water met veel privacy en rust: een oase voor watersportliefhebbers én natuurliefhebbers
De achtertuin – met volledige zonligging – grenst direct aan het water, waardoor je kunt genieten van de mogelijkheid om je eigen sloep, kano of SUP-board aan te leggen. Of je nu houdt van varen, vissen of gewoon ontspannen aan de waterkant: deze tuin biedt het allemaal.
De voortuin en oprit bieden parkeergelegenheid op eigen terrein, met ruimte voor meerdere auto’s.
Tuinen rondom: voortuin, zijtuin én een diepe/brede achtertuin, ideaal voor zonnebaden, tuinieren of gewoon genieten van de ruimte.
Ligging aan vaarwater: perfect voor wie graag vaart met een boot, sup of kano – direct toegang tot het water van de Spiegelplas vanuit je achtertuin.
Comfortabel wonen & slimme verdeling
Licht en functioneel: vier kamers (waaronder drie slaapkamers), een badkamer en twee afzonderlijke toiletten – ideaal voor gezinnen of thuiswerkers.
Volle eigendom: geen onduidelijkheden over erfpacht of vruchtgebruik – het hele perceel is van jou.
Ideale ligging & voorzieningen
Centraal maar rustig: wandelbaar naar het gezellige dorpscentrum, met winkels, scholen, kinderopvang en horeca in de buurt.
Verbindingen op maat: binnen 10–15 minuten met de auto bereik je Weesp, Hilversum en Bussum, en in circa 25 minuten ben je in Amsterdam via de N236. Openbaar vervoer naar Weesp met snelle verbindingen naar de hoofdstad.
Waarom jouw toekomst hier begint:
Beleef elk seizoen op een nieuwe manier: van ontspannen zomerochtenden aan het water tot warme avonden in de tuin of huiselijke momenten in deze sfeervolle villa. Deze woning combineert rust en privacy met een praktische ligging, ideaal voor wie zoekt naar balans tussen natuur en bereikbaarheid.
Laat deze unieke kans niet glippen: wonen op een plek die voelt als vakantie, 365 dagen per jaar.
Samengevat/kenmerken :
Direct aan de Spiegel- en Blijkpolderplas met mogelijkheid om boot aan te leggen
Unieke woonlocatie met vaar-, zwem- en duikmogelijkheden
Natuur, rust en recreatie direct voor de deur
Uitbouwmogelijkheden (dakkapellen en uitbouw achter; reeds onderheid)
Vloerverwarming in de keuken
Dorpscentrum, scholen en sport op loopafstand
Goede bereikbaarheid richting Amsterdam, Hilversum en omgeving
Interesse? Neem contact met ons op – we nodigen je graag uit om de sfeer van Dammerweg64 zelf te ervaren.
NB: bezichtigingen kunnen eventueel ook 's avonds of in het weekend. Lees de volledige omschrijving
Overdracht
- Vraagprijs
- € 1.200.000 k.k.
- Status
- Beschikbaar
- Aanvaarding
- In overleg
Bouw
- Object type
- Villa, vrijstaande woning
- Soort bouw
- Bestaande bouw
- Bouwjaar
- 2002
- Soort dak
- Dwarskap bedekt met pannen
Oppervlakte en inhoud
- Woonoppervlakte
- 118 m²
- Perceeloppervlakte
- 494 m²
- Inhoud
- 611 m³
- Externe bergruimte
- 10 m²
Indeling
- Aantal kamers
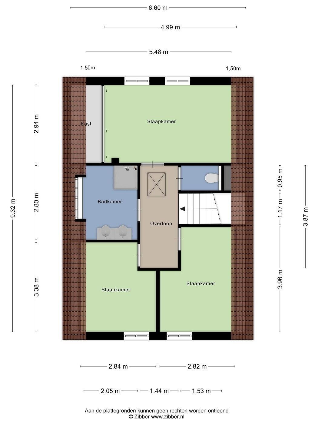
- 4 kamers (3 slaapkamers)
- Aantal badkamers
- 1 badkamer en 1 apart toilet
- Aantal woonlagen
- 2 woonlagen en een zolder
- Voorzieningen
- Mechanische ventilatie
Energie
- Energielabel
- A
- Energielabel registratie
- 21-07-2025
- Isolatie
- Dakisolatie, dubbel glas, muurisolatie, vloerisolatie en volledig geïsoleerd
- Verwarming
- Cv-ketel
- Warm water
- Cv-ketel
- Cv ketel
- Hr-107 (gas gestookt combiketel, eigendom)
Buitenruimte
- Ligging
- Aan rustige weg en aan vaarwater
- Tuin
- Achtertuin
Bergruimte
- Schuur / berging
- Vrijstaande houten berging
Garage
- Soort garage
- Aangebouwde stenen garage
- Capaciteit
- 1 auto
- Voorzieningen
- Stromend stromend water
Parkeergelegenheid
- Soort parkeergelegenheid
- Op eigen terrein, openbaar parkeren en parkeergarage
Energieverbruik in Nederhorst den Berg
Energielabel deze woning
Energielabel A
Publicatie energielabel: 21-07-2025
Stroomverbruik per jaar
(Gemiddelde vrijstaande woning in Nederhorst den Berg)
Gasverbruik per jaar
(Gemiddelde vrijstaande woning in Nederhorst den Berg)
* Cijfers zijn afkomstig van het CBS en bedoeld als indicatie en kunnen verschillen voor deze woning
Indicatie hypotheeklasten
Eigen inleg:
Spaargeld / overwaarde
Rente:
Laagste 10-jaars rente
Laagste 10-jaars rente
2,88% - Woonfonds Groen Woonge... - NHG
3,1% - Argenta Groen Hypotheek... - 80%
Laagste 20-jaars rente
3,19% - Centraal Beheer Groen... - NHG
3,47% - Argenta Groen Hypothee... - 80%
Laagste 30-jaars rente
3,34% - Centraal Beheer Groen... - NHG
3,64% - Argenta Groen Hypothee... - 80%
Hypotheek:
Bruto maandlasten: € 0 p/m
Netto maandlasten: € 0 p/m
Hoe berekenen we dit?
Het rentepercentage is gebaseerd op de laagste 10 jaars vaste rente voor één hypotheekdeel. De vermelde rente (3.1% zonder NHG) is gecontroleerd op 09-12-2025. Deze berekening is gebaseerd op een annuïteitenhypotheek die volledig wordt afgelost, waarbij de maandlasten gedurende de gehele looptijd gelijk blijven. De werkelijke rente en netto maandlasten kunnen variëren, afhankelijk van uw persoonlijke situatie en de hypotheekverstrekker. Raadpleeg een financieel adviseur voor een nauwkeurige berekening en advies. Aan deze berekening kunnen geen rechten worden ontleend; het dient enkel als indicatie.
Documentatie
Kadastrale kaart
Leefomgeving
Brochure
BAG uittreksel
Eigendomsinformatie-dammerweg-64-nederhorst-den-berg-b-1456
Kadastrale-kaart-dammerweg-64-nederhorst-den-berg-b-1456
Ligplaats
Meetrapport-a-1565628-20250711014234
Eigendomsinformatie-nederhorst-den-berg-b-1173
Avl-b1173-dammerweg-64-ndb
Avl-dammerweg-64
Energielabel-dammerweg-64-1394gp-nederhorst-den-berg
Dammerweg-64-roerende-zaken
Dammerweg-64-meldingsplicht-verkoper
WOZ waarderapport
Plattegronden PDF
Bekijk onze website
Bezichtiging
Bod uitbrengen
Waardebepaling
Zoekopdracht
Alles downloaden
Zonnegrenzen bekijken
Inwoners in Nederhorst den Berg
Cijfers voor postcodegebied 1394
- Totaal aantal inwoners
- 5500 inwoners
- Mannen
- 49%
- Vrouwen
- 51%
Inwoners in Nederhorst den Berg
Cijfers voor postcodegebied 1394
- tot 15 jaar
- 17%
- 15 tot 25 jaar
- 10%
- 25 tot 35 jaar
- 19%
- 45 tot 65 jaar
- 30%
- 65 en ouder
- 24%
Huishoudens in Nederhorst den Berg
Cijfers voor postcodegebied 1394
- Eenpersoons zonder kinderen
- 28%
- Meerpersoons zonder kinderen
- 33%
- Huishoudens zonder kinderen
- 61%
Huishoudens in Nederhorst den Berg
Cijfers voor postcodegebied 1394
- Huishoudens met één kind
- 6%
- Huishoudens met meerdere kinderen
- 32%
- Huishoudens met kinderen
- 38%
Woningen in Nederhorst den Berg
Cijfers voor postcodegebied 1394
- Woningen voor 1945
- 15%
- Woningen tussen 1945 en 1965
- 12%
- Woningen tussen 1965 en 1975
- 26%
- Woningen tussen 1975 en 1985
- 13%
- Woningen tussen 1985 en 1995
- 16%
Woningen in Nederhorst den Berg
Cijfers voor postcodegebied 1394
- Woningen tussen 1995 en 2005
- 5%
- Woningen tussen 2005 en 2015
- 6%
- Woningen na 2015
- 7%
- Huurwoningen
- 30%
- Koopwoningen
- 70%
Overige in Nederhorst den Berg
Cijfers voor postcodegebied 1394
- Gemiddelde WOZ waarde
- € 390.000,-
- Personen onder de 65 met uitkering
- 5%
Overige in Nederhorst den Berg
Cijfers voor postcodegebied 1394
- Adressen per km²
- 377
- Stedelijkheid (schaal 1 op 5)
- 20%
STERK! Makelaars
Indien u vragen heeft of u wilt een bezichtiging inplannen, dan kunt u gebruik maken van het formulier hiernaast. Er zal daarna op korte termijn contact met u worden opgenomen.
Eilandseweg 32 C198
1394 JG, Nederhorst den Berg
06 - 1565 4570 welkom@sterkmakelaars.com www.sterkmakelaars.comContact opnemen
Over STERK! Makelaars
STERK! Makelaars is een nieuwerwetse makelaar die de vaste kosten maximaal geminimaliseerd heeft.
Jij profiteert daarvan en je kunt er zeker van zijn dat we voor onze diensten een zeer gunstig courtage hanteren. Zowel voor verkoop- als aankoopopdrachten.
Win-win dus!
Nieuwsgierig?
Nieuwste reviews
-
Eilandseweg 32 C190
Remco van Sterk Makelaars heeft ons uitstekend begeleid bij de verkoop van onze woning. Hij is professioneel, betrokken en communiceert duid...
-
Broekzijdselaan 15
Remco voldeed aan al mijn verwachtingen en is zeer professioneel.Ondanks droevige persoonlijke omstandigheden die hij doormaakte tijdens het...
-
Wyandottestraat 17
No nonsens benadering. Heeft een reële vraagprijs bepaald en daarmee snelle verkoop. Is alert, snelle actie. Extra publiciteit via social me...